
Gallery View
A glimpse inside 2 Dodd Avenue’s elegant living spaces.
















Tap to view full screen














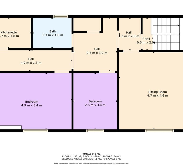
Floor Plans



Key features
Six bedrooms and multiple reception rooms offer adaptable, elegant spaces for family life and entertaining
Private driveway fits three vehicles, offering secure, convenient access for residents and guests.
Solid build, no known defects. Not listed, no public rights of way, no flood risk
7,728 sqft plot ensures privacy and outdoor versatility. North-west garden for evening light
Freehold tenure provides security and flexibility. No conservation or listing restrictions.
Dedicated study / home office, providing a refined and private environment for professional home working.


Upper floors offer genuine privacy for bedrooms, guests, or teenagers, while the top floor provides a semi-independent retreat ideal for extended family.
From formal dining to relaxed kitchen gatherings, the layout naturally supports entertaining. In warmer months, the flow extends seamlessly into the garden and terrace.
Location Details
Nestled in Warwick, 2 Dodd Avenue offers peaceful surroundings with easy access to local amenities.
Address
2 Watling Street, Witherley
Hours
Mon-Fri 9am-5pm
Arrange Viewing
Get timely updates about 2 Dodd Avenue
